This post shows some screen captures demonstrating work that I did on a Computer-Aided Civil Engineering application called "FESPA for Windows" back in 1996-1998 while working at SENA Ltd. on behalf of "LH Logismiki".
"FESPA for Windows" is now called "Master". SENA Ltd. does not exist anymore, but LH Logismiki does, and their website can be found here: http://www.lhlogismiki.gr/. I took these screen captures from their web site, and apparently the modules that I built for them back in 1998 have not changed much, 15 years later. Even most of the icons that I designed for them are still the same.
![]() |
|---|
| 3DV on black background #1. Click to enlarge. |
The above is a screen capture of the "3DV" module, designed and written entirely by me. It is from the early black-background days, before we were told to switch to white background to "make it look more like Microsoft Word". 3DV can pan the structure up, down, right and left, zoom it in and out, and rotate it in any way the user likes. Using data produced by the finite-element analysis module, it can also show the distortions that the building undergoes due to static loads, or in the event of an earthquake. It can even animate the distortion of the whole building. (Pretty fancy stuff!)
![]() |
|---|
| 3DV on black background #2 . Click to enlarge. |
The wireframe representation of the building is done using plain GDI calls to draw lines & text, and BitBlt to draw the nodes. Flicker is eliminated by means of simple double buffering: the entire image is drawn on an off-screen bitmap, which is then copied to the screen with BitBlt.
![]() |
|---|
| 3DV on a white background panel #1 . Click to enlarge. |
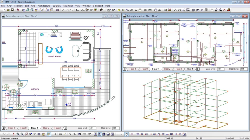
Here is the final "ms-wordesque" white background look with which the application was released to the market: the left and top-right panels contain modules written by colleagues, showing different kinds of ground plans. The bottom-right panel contains an instance of the 3DV module. Here 3DV displays the building without perspective; I was told that Civil Engineers tend to prefer this kind of view.
![]() |
|---|
| 3DV on a white background panel #2 . Click to enlarge. |
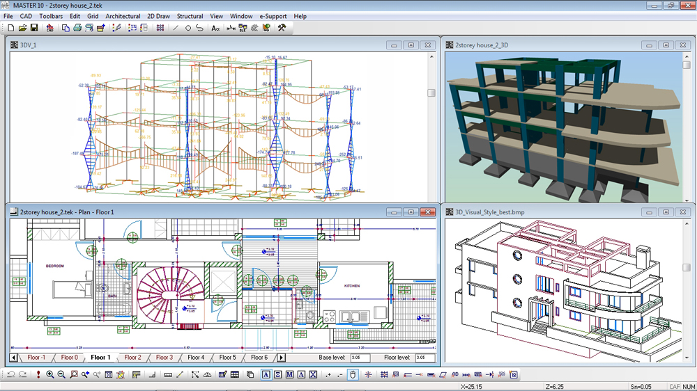
In the above screen capture 3DV is on the top-left panel, with perspective again switched off. Along each member it displays a torque diagram, using data obtained from the finite-element analysis module. On the right side two other modules display different kinds of 3D views of the building. Back in 1998 these modules had not been implemented yet.
![]() |
|---|
| Tables on two panels, 3DV on another, something else in the center. . Click to enlarge. |
On the left side and on the top-right side we can see instances of the "Tables" module, also designed and written entirely by me. It looks and feels like a spreadsheet, allowing the user to navigate through large amounts of mostly numeric data and edit single cells or multiple cells at once, or apply bulk operations on selected cells. On the middle panel there is a ground plan module (written by a colleague) and on the bottom-right panel is another instance of 3DV.
![]() |
|---|
| Maximized 3DV with member properties and node properties. . Click to enlarge. |
Here we have a maximized view of the 3DV module, allowing us to see some detail. Most, if not all of those icons on the toolbar were made by me. I was actually surprised to find these screenshots on the web site of LH Logismiki in May of 2013 because they show that this module has not had to be altered by much over a period of 15 years . On the left side we can see a selected vertical member (thick red) and a modeless dialog allowing us to view and edit its properties, while on the right side there is a selected node and its properties.
![]() |
|---|
| Maximized 3DV with force diagrams #1 . Click to enlarge. |
In the above picture we can see 3DV maximized, showing various kinds of force diagrams along horizontal and vertical members of a building rendered with perspective.
![]() |
|---|
| Maximized 3DV with force diagrams #2 . Click to enlarge. |
All kinds of force diagrams here. As you can see, I made 3DV capable of displaying quite a lot of information.
![]() |
|---|
| Maximized 3DV with force diagrams #3 . Click to enlarge. |
Another view with diagrams, this time along with the modeless dialog box through which you can select what kinds of forces you want to see on the diagrams and how you want to see them. The sliders are for magnification.
![]() |
|---|
| 3DV animating a building under stress. . Click to enlarge. |
A screenshot of 3DV animating the distortions of a building. A standing-still light gray wire frame shows the building at rest while the colored wire frame twists, shakes and rocks. The modeless dialog contains the controls for starting and stopping the animation, the slider for selecting the speed of the animation, and the sliders for magnifying the distortion along each axis so as to make the effect more visible (that is, more dramatic!)









